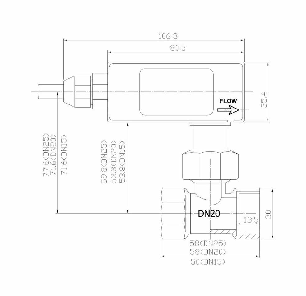
挡板式水流开关,采用低压降、高精度设计,具有可靠性高、使用寿命长、使用温度范围宽、承压高等特点。WFS32带刻度显示水流开关不仅可根据客户要求精确设定保护流量值,而且可以显示保护流量设定值。另外,客户还可以根据实际需要对设定值进行调节,调节后的保护流量值则可通过刻度值读出。应用范围:中央空调等制冷设备冷却水系统、热泵、工业自动化,润滑系统,液压系统过程生产线、化工、净水污水处理系统、激光设备、焊接设备、造纸、食品、药业等一切需要检测液体流量的领域。
产品特性:
外壳防护等级:IP65
输出形式:微动开关SPDT输出或Din插头输出
触点寿命:10万次
使用介质温度范围:-30~110℃
工作介质:空气、水和油
微动开关参数:5A(max.)、250VAC/DC)
最大承压:25bar
材质:壳体为黄铜或不锈钢,挡板为不锈钢材质
选型示例
|
WFS32 |
15 |
HN |
|
WFS31=不带刻度显示系列 |
15=DN15(G 1/2〞) |
DN=黄铜镀镍、内丝接口 |
选型参考
|
管径 |
DN15 |
DN20 |
DN25 |
DN32 |
DN40 |
DN50 |
… |
|
最大允许流量值(m3/h) |
1.8 |
6 |
10 |
15 |
21 |
28 |
… |
|
流量保护值设定范围(m3/h) |
0.12-1 |
0.3-2 |
0.4-3 |
0.5-4 |
0.9-6 |
1-8 |
… |

